物件詳細 マンション(分譲) 弘前市
detailsマンション(分譲) ライオンズマンション弘前一番町 8階 805号室
情報更新日:2026-02-10
申し込みはいりました。キャンセル待ちの方はご相談下さい。
- 所在地
- 青森県 弘前市 一番町8番地
- 価格
- 900万円
- 間取り
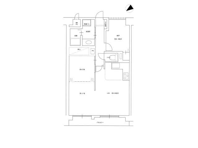
- 2SLDK
- 築年数
- 平成2年8月
- 専有面積
- 62.99㎡
- バルコニー面積
- 9.11㎡
本物件の内容や画像等は全て現況優先となります。
各画像は参考図となります。
| 交通機関 |
弘南鉄道大鰐線 中央弘前駅徒歩約8分 JR奥羽本線 弘前駅徒歩約19分 |
||
|---|---|---|---|
| 学区 | 時敏小学校(1.8km)・第一中学校(0.8km) | ||
| 詳細間取 | 2SLDK (洋6帖×1、洋4.5帖×1、LDK12.8帖、サービスルーム5.6帖) | ||
| 周辺施設 | |||
| 周辺環境 | その他費用 | ||
| 総戸数 | 建物構造 | SRC造 | |
| 築年月 | 平成2年8月 | 主要採光方向 | 不明 |
| 駐車場 | 地勢 | ||
| 駐車場複数台 | 不可 | 土地権利 | 所有権 |
| 用途地域 | 国土法届 | 不要 | |
| 取引態様 | 専任媒介 | 現況 | 空家 |
| 管理 | 日勤 (管理会社:大京アステージ、管理形態:全部委託) | 建築確認番号 | |
| 管理費 | 15,300円 | 修繕積立金 | 15,450円 |
| 引渡 | 即可 | 借地料/借地期間 | ─ / ─ |
| 設備 | バス(有 ) トイレ(洋式 独立 水洗) 上水道設備(公営) 下水道設備 洗面化粧台(独立) ガスコンロ インターホン バルコニー 照明器具 TVアンテナ | ||
| 備考 | 物置3.64㎡有、1階共有入口に宅配BOX新設!! ※同業他社による客付け可(手数料割合:自社50%/他社50%) | ||
| 取扱業者 |
㈱アート不動産 青森県知事免許(4)第3327号 青森県弘前市本町34-1 TEL:0172-31-8131 FAX:0172-31-8228 (公社)青森県宅地建物取引業協会会員 東北地区不動産公正取引協議会加盟事業者 |
||




















