物件詳細 マンション(分譲) 弘前市
detailsマンション(分譲) ライオンズマンション住吉町 6階 601号室
情報更新日:2026-03-26
景観良好!!岩木山が良く観える部屋です!!
- 所在地
- 青森県 弘前市 住吉町4
- 価格
- 1,000万円
- 間取り
- 4K
- 築年数
- 平成元年11月
- 専有面積
- 64.52㎡
- バルコニー面積
- 19.22㎡
本物件の内容や画像等は全て現況優先となります。
各画像は参考図となります。
| 交通機関 | 弘南鉄道大鰐線 中央弘前駅徒歩約2分 | ||
|---|---|---|---|
| 学区 | 大成小学校(0.45km)・第三中学校(1.9km) | ||
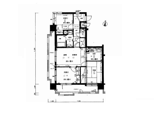
| 詳細間取 | 4K (洋9.1帖×1、洋5.5帖×1、洋5帖×1、和6帖×1、キッチン3.5帖) | ||
| 周辺施設 | 弘前中央病院:190m | ||
| 周辺環境 | 弘前レンガ倉庫美術館まで徒歩約1分 | その他費用 | |
| 総戸数 | 36戸 | 建物構造 | SRC造 |
| 築年月 | 平成元年11月 | 主要採光方向 | 南 |
| 駐車場 | 地勢 | ||
| 駐車場複数台 | 不可 | 土地権利 | |
| 用途地域 | 国土法届 | ||
| 取引態様 | 一般媒介 | 現況 | 空家 |
| 管理 | 日勤 (管理会社:大京アステージ、管理形態:全部委託、管理組合:有) | 建築確認番号 | |
| 管理費 | 18,300円 | 修繕積立金 | 17,950円 |
| 引渡 | 即可 | 借地料/借地期間 | ─ / ─ |
| 設備 | バス(有 給湯式) トイレ(洋式 独立 水洗) 上水道設備(公営) 下水道設備 給湯(ガス) 洗面化粧台(独立) 都市ガス インターホン エアコン バルコニー 下駄箱 洗濯機置場 照明器具 TVアンテナ エレベーター 郵便受 宅配ボックス | ||
| 備考 | ※同業他社による客付け可(手数料割合:自社50%/他社50%) | ||
| 取扱業者 |
㈱アート不動産 青森県知事免許(4)第3327号 青森県弘前市本町34-1 TEL:0172-31-8131 FAX:0172-31-8228 (公社)青森県宅地建物取引業協会会員 東北地区不動産公正取引協議会加盟事業者 |
||




















