物件詳細 事務所 弘前市
details事務所 塩分町売事務所
情報更新日:2026-04-16
売事務所
- 所在地
- 青森県 弘前市 塩分町4-22
- 価格
- 1,200万円
- 間取り
- 3室
- 築年数
- 昭和43年11月
- 建物延面積
- 107.64㎡
- 敷地面積
- 60.41㎡ (公簿)
本物件の内容や画像等は全て現況優先となります。
各画像は参考図となります。
| 交通機関 | 弘南鉄道大鰐線 中央弘前駅徒歩約13分 | ||
|---|---|---|---|
| 学区 | 朝暘小学校(0.7km)・第四中学校(1.66km) | ||
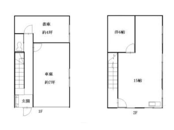
| 詳細間取 | 3室 (1階:洋4帖×1、2階:洋15帖×1、2階:洋6帖×1) | ||
| 周辺施設 | |||
| 周辺環境 | 弘前市役所裏口まで徒歩1分 | その他費用 | |
| 総戸数 | 1戸 | 建物構造 | 木造 |
| 築年月 | 昭和43年11月 | 主要採光方向 | 東 |
| 駐車場 | 敷地内 可 | 地勢 | 平坦 |
| 駐車場複数台 | 不可 | 土地権利 | 所有権 |
| 用途地域 | 第一種住居 | 国土法届 | 不要 |
| 取引態様 | 専任媒介 | 現況 | 空家 |
| 引渡 | 即可 | 借地料/借地期間 | ─ / ─ |
| 地目 | 宅地 | 都市計画 | 市街化 |
| セットバック | 無 | 接道状況 | 一方(公道・東側・間口5.8m・幅員5.4m) |
| 私道負担 | ─ / ─ | ||
| 法令上の制限 | |||
| 建ぺい率/容積率 | 60% / 200% | 管理 | 不明 |
| 利回り | ─ / ─ | 修繕積立金 | |
| 設備 | バス(無) トイレ(洋式 独立 水洗 暖房便座) 上水道設備(公営) 下水道設備 都市ガス インターホン エアコン FFストーブ 下駄箱 照明器具 車庫 | ||
| 備考 | ・内装・外装共にリフォームしておりますが正確な時期は不明となっております。 (リフォーム時期昭和63年頃) ・設備ですが1年以上使用しておらず売主は設備の保証は致しません。 ・1階書庫の床が湿気により落ちております。 ・建物は既存不適格建築物になりますが現況引渡しとなります。 ※同業他社による客付け可(手数料割合:自社50%/他社50%) | ||
| 取扱業者 |
㈱アート不動産 青森県知事免許(4)第3327号 青森県弘前市本町34-1 TEL:0172-31-8131 FAX:0172-31-8228 (公社)青森県宅地建物取引業協会会員 東北地区不動産公正取引協議会加盟事業者 |
||











